Pro členy Residence 55 plus, je k dispozici komunitní centrum

Komunitní centrum

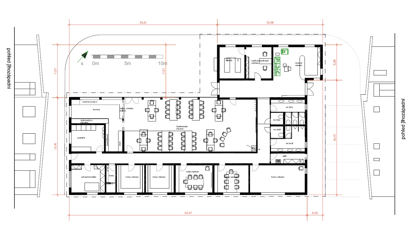
Bezbariérová, nízkoenergetická společenská budova s podlahovou plochou cca 582m2 je součástí areálu bytových domů. Budova je určena pro společné aktivity členů, společenské události, kulturní představení, koníčky, apod.

Vybavení komunitního centra – recepce, společenská místnost, hobby dílna, prádelna, kuchyňský kout, atd.

Komunitní centrum

Komunitní centrum Residence 55 plus

Komunitní centrum vchod Residence 55 plus

 


Facebook Twitter LinkedIn Google+ Addthis

Kontakt

Residence 55 plus
331 65 Žihle, Česká republika
+420 774 547 989